0
Vendu
3 Pièce(s)
2 Chambre(s)

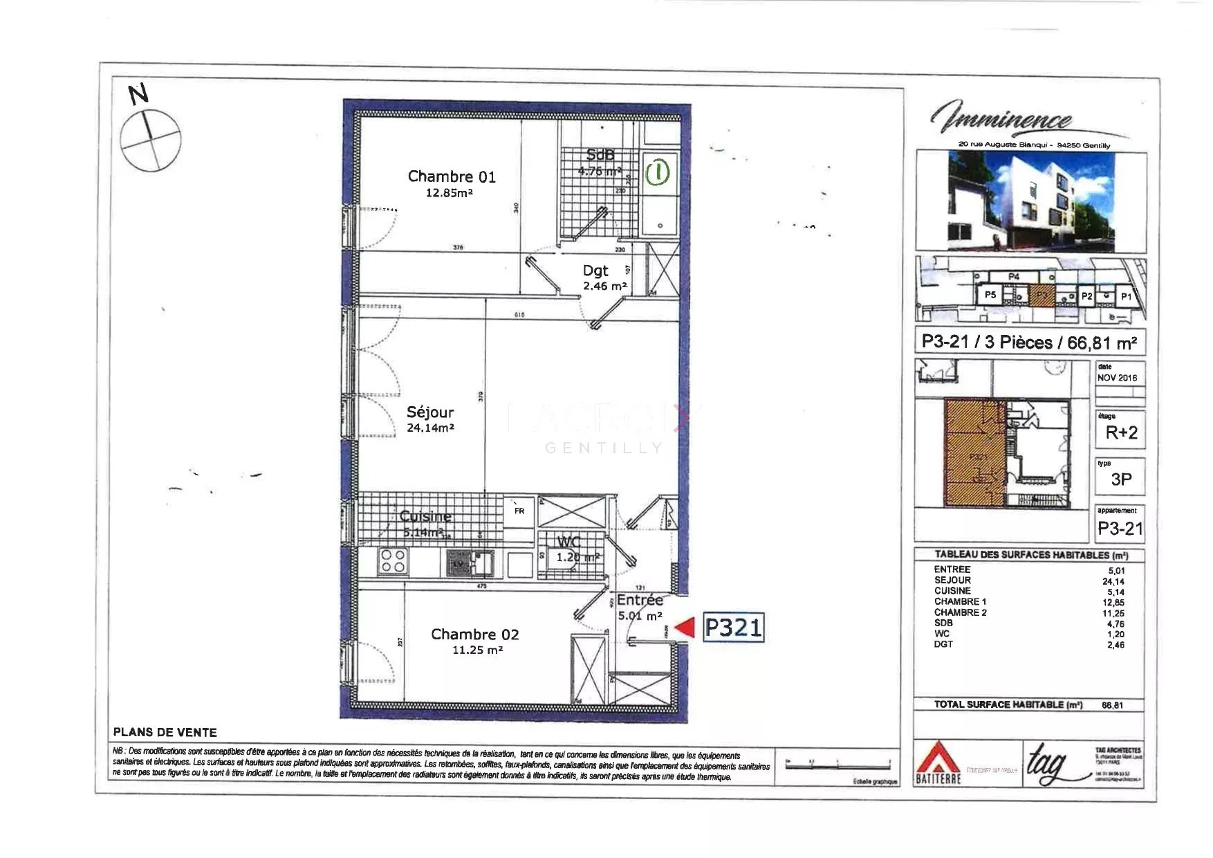
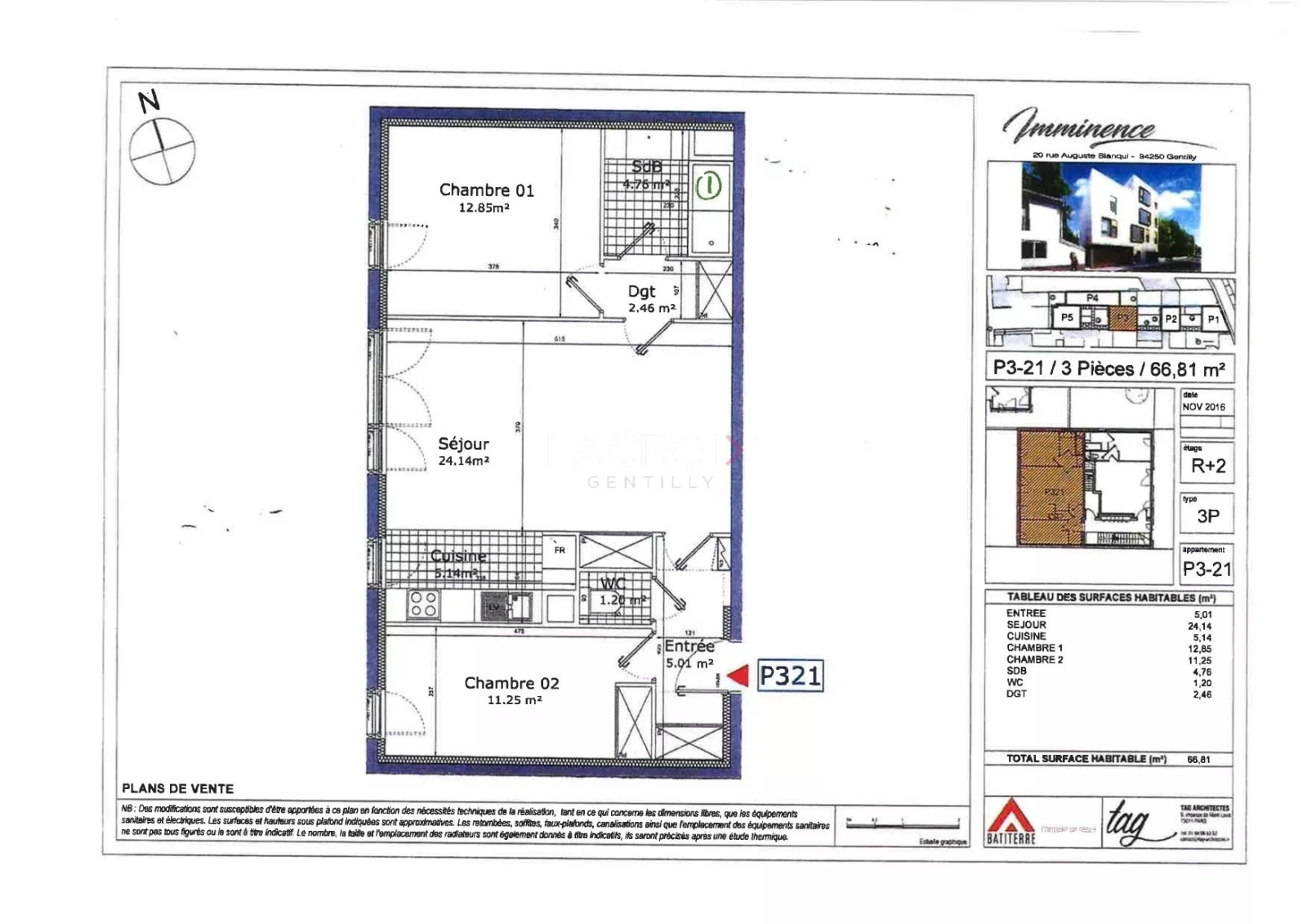
Appartement 3 pièces 67 m2 Jamais habité

Gentilly (94250)
Réf : 82681698
EXCLUSIVITE - L'Agence Lacroix vous propose, sur le plateau de Gentilly à 2 pas du RER B, au 20 rue Auguste Blanqui, au 2ème et dernier étage, appartement 3 pièces de 67 m2, jamais habité. Ce bien est composé de : Entrée, dégagement, 2 chambres, cuisine ouverte sur séjour, Salle de bains, WC séparé. Exposition Ouest. Une place de parking en sous-sol complète ce bien.

En Bref

Code postal 94250
Surface habitable (m²) 67 m²
Surface loi Carrez (m²) 67 m²
Nombre de chambre(s) 2
Nombre de pièces 3
Etage 2
Nb de salle de bains 1
Exposition Ouest
Année de construction 2021

Infos financières

Les honoraires d'agence seront intégralement à la charge du vendeur  

Partager ce bien Quartier

Quartier
  • Commerces et santé
  • Loisirs
  • Ecoles
  • Transports
  • Pratique